- 価格4,998万円
- 種別新築戸建
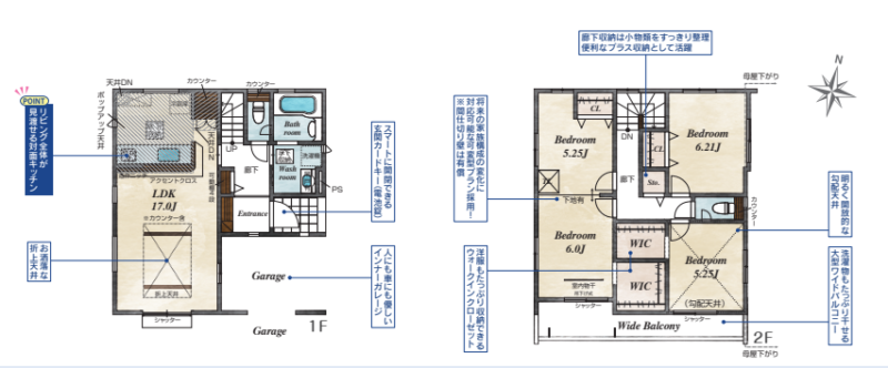
- 間取3(4)LDK
- 所在地
- 埼玉県さいたま市緑区道祖土1丁目 緑区道祖土1丁目 1号棟
- 交通
- JR京浜東北・根岸線 北浦和駅
バス(市営アパート 乗12分 停歩3分)
JR東北本線 浦和駅
バス(市営アパート 乗25分 停歩3分)
物件詳細
| 築年月 | 2026/04 | 新築/中古 | 新築・未入居 |
|---|---|---|---|
| 面積 | 113.96m² | 計測方式 | |
| バルコニー | 向き | ||
| 建物階数 | 部屋階数 | 2階 | |
| 部屋/区画番号 | 1号棟 | 総戸/区画数 | |
| 建物構造 | 木造 | ||
| 間取内容 | |||
| 駐車場 | 取引態様 | 仲介 | |
| 引渡/入居時期 | 期日指定 2026/05 下旬 | 現況 | 未完成 |
| 地目 | 用途地域 | 第一種中高層住居専用 | |
| 都市計画 | 市街化区域 | 用途地域2 | |
| 土地面積 | 103.74m² | 土地面積計測方式 | |
| 建ぺい率 | 60% | 容積率 | 172% |
| 土地権利 | 所有権 | 接道状況 | 一方 |
| 接道方向1 | 東 | 接道間口1 | |
| 接道種別1 | 接道幅員1 | 4.3m | |
| 周辺環境 |
道祖土小学校 徒歩6分 木崎中学校 徒歩10分 |
||
| 設備・条件 | 設計住宅性能評価書 建設住宅性能評価書 長期優良住宅 制震・免震・耐震 LDK15帖以上 バリアフリー 全居室収納 床下収納 ウォークインクローゼット 対面キッチン カウンターキッチン 食器洗浄乾燥機 浴室乾燥機 浴室に窓 温水洗浄便座 トイレ2か所 ワイドバルコニー 駐車2台可 ビルトインガレージ TVモニター付インターホン フラット35対応 年内入居可 24時間換気システム 都市ガス 給湯器、折上天井、室内物干、在来工法、火災報知器、造作ニッチ、手すり付き階段、低ホルムアルデヒド、アクセントクロス(一部) |
||
| 物件番号 | 32082 | ||
| 特記事項 | 建築確認番号:第25UDI1W建11122号 | ||
Loading...
※物件掲載内容と現況に相違がある場合は現況を優先と致します。
株式会社オリオン
Contact
Contact
お問い合わせはこちらからお寄せください
お電話からのご予約・お問い合わせ
TEL048-645-9580
営業時間09:00~18:00
定休日 水曜日&第1・第3火曜日
WEBからのご予約・お問い合わせ











