- 価格5,890万円
- 種別新築戸建
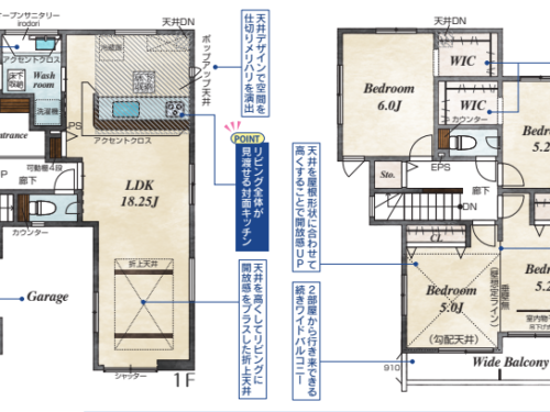
- 間取1SLDK
- 所在地
- 埼玉県さいたま市北区盆栽町 北区盆栽町535番 C号棟
- 交通
- JR東北本線 土呂駅 徒歩4分
物件詳細
| 築年月 | 2025/09 | 新築/中古 | 新築・未入居 |
|---|---|---|---|
| 面積 | 79.70m² | 計測方式 | |
| バルコニー | 向き | ||
| 建物階数 | 部屋階数 | 2階 | |
| 部屋/区画番号 | C号棟 | 総戸/区画数 | |
| 建物構造 | 木造 | ||
| 間取内容 |
1+2納戸+DK |
||
| 駐車場 | 取引態様 | 仲介 | |
| 引渡/入居時期 | 期日指定 | 現況 | |
| 地目 | 宅地 | 用途地域 | 第一種住居 |
| 都市計画 | 市街化区域 | 用途地域2 | |
| 土地面積 | 75.42m² | 土地面積計測方式 | |
| 建ぺい率 | 60% | 容積率 | 160% |
| 土地権利 | 所有権 | 接道状況 | 一方 |
| 接道方向1 | 東 | 接道間口1 | |
| 接道種別1 | 接道幅員1 | 4.0m | |
| 周辺環境 |
植竹小学校 徒歩7分 植竹中学校 徒歩10分 |
||
| 設備・条件 | 設計住宅性能評価書 建設住宅性能評価書 制震・免震・耐震 LDK15帖以上 ロフト 納戸 浴室に窓 トイレ2か所 ビルトインガレージ 都市ガス | ||
| 物件番号 | 31971 | ||
| 特記事項 | 建築確認番号:第HPA-25-11164-1号 | ||
Loading...
※物件掲載内容と現況に相違がある場合は現況を優先と致します。
株式会社オリオン
Contact
Contact
お問い合わせはこちらからお寄せください
お電話からのご予約・お問い合わせ
TEL048-645-9580
営業時間09:00~18:00
定休日 水曜日&第1・第3火曜日
WEBからのご予約・お問い合わせ










